This project involved the complete construction of a custom-designed home in Toronto, delivered through a fully managed, end-to-end building process. From the architectural drawings to the final finishing touches, Greenstone handled every stage with precision, craftsmanship, and a strong commitment to quality.
The build included full demolition of the existing structure, excavation, complete concrete work, structural framing, and the full interior and exterior finishing package. The result is a modern, durable, and highly functional custom home tailored to the client’s lifestyle and long-term vision.
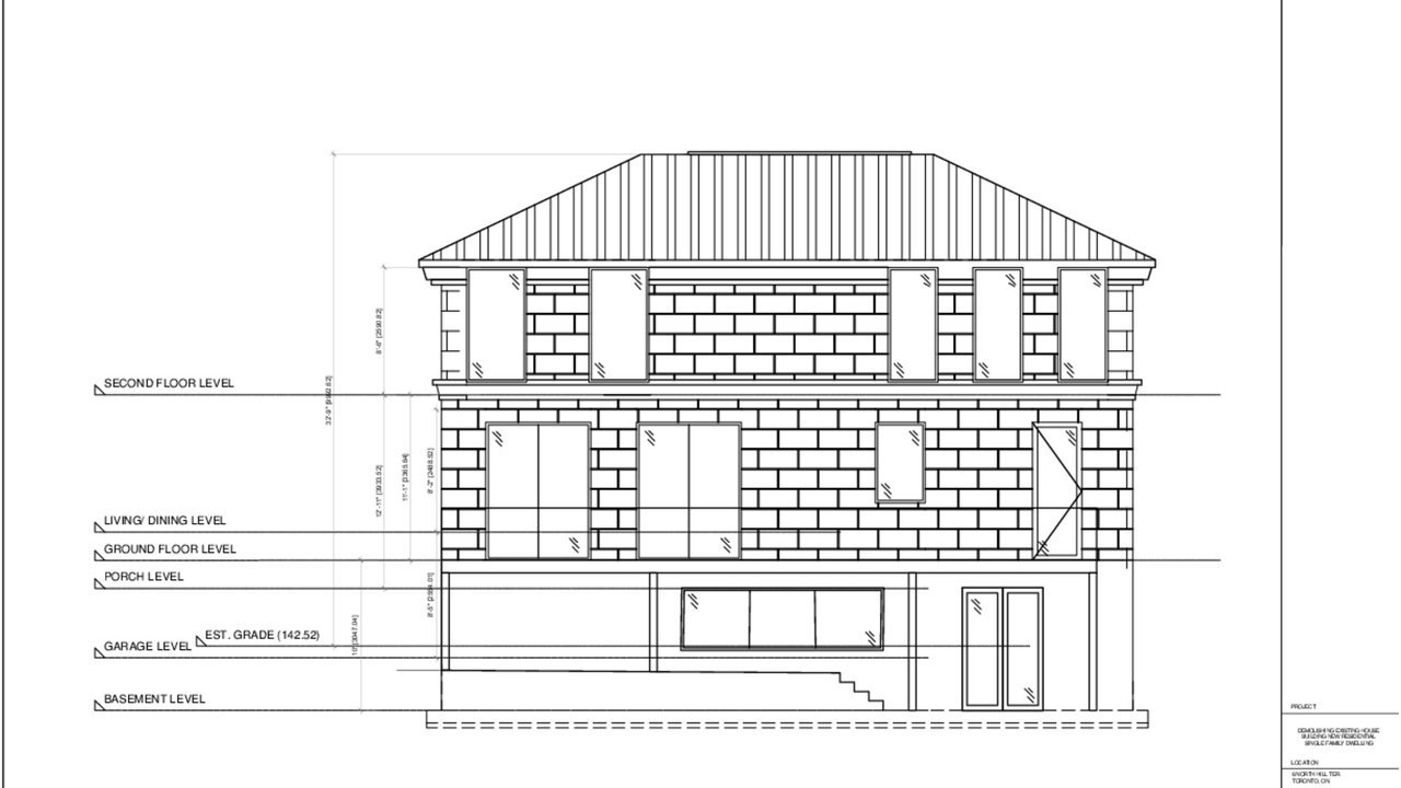
Architectural Drawings & Permits
Preparation of complete construction drawings, engineering, and permit approvals.
Demolition & Excavation
Safe removal of the previous structure and full site excavation.
Concrete Work
Footings
Foundation walls
Basement & ground floor slabs
Structural Framing
Precision framing for all floors, roof systems, and load-bearing elements.
Interior Finishing
Installation of drywall, flooring, millwork, fixtures, and final aesthetic detailing.
Exterior Finishing
Complete exterior cladding, roofing, insulation, and architectural detailing.
This project represents Greenstone’s ability to deliver high-quality custom homes in Toronto, built with strong structural foundations, thoughtful design, and top-tier craftsmanship from start to finish.
